Commanding attention from the moment you arrive, this expansive six-bedroom masterpiece has been crafted to deliver uncompromising luxury, privacy and versatility across an impressive footprint.
Grand Living & Accommodation
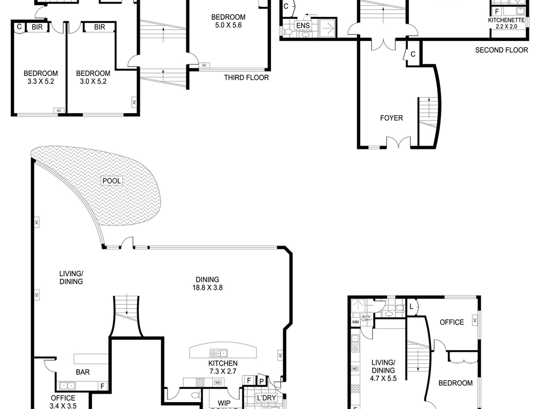
Six oversized bedrooms provide palatial comfort, including three with opulent private ensuites. Two additional designer bathrooms service the home, ensuring effortless functionality for large families and guests alike. The master retreat upstairs offers a private sanctuary, including bedroom, bathroom ,kitchen/ living and an office, generous in scale and sophistication.
Multiple formal and informal living domains create seamless flow for both intimate family living and large-scale entertaining.
At the heart of the residence are two fully appointed kitchens, allowing for grand-scale hosting, private catering or multigenerational living. Whether entertaining executives or extended family, this home delivers without limitation.
A temperature-controlled wine cellar elevates the lifestyle offering, adding a refined layer of indulgence rarely found in residential property.
Outdoors, the property transforms into a tropical sanctuary. A stunning resort-style pool is framed by expansive alfresco entertaining zones designed for year-round Territory living. Private, impressive and beautifully proportioned, this is an environment made for celebration, relaxation and exclusivity.
• Dedicated executive home office
• Extra-large storeroom ideal for secure storage
• Extensive parking and practical infrastructure
• Premium proportions internally and externally
With its exceptional scale, dual kitchens and multiple ensuites, the residence also presents an extraordinary opportunity for high-end executive leasing or luxury short-term accommodation, comfortably hosting large families, corporate groups or VIP guests.
This is not simply a home - it is a statement property.
A rare chance to secure a landmark residence in Bayview, where luxury, scale and lifestyle converge.
Features
- Air Conditioning
- Outdoor Entertainment Area
- Swimming Pool - In Ground
- Fully Fenced
- Secure Parking
- Built-in Wardrobes
- Dishwasher
- Study



















































